Mediante este espacio mostraremos obras de arquitectura latinoamericanas que tienen, a nuestro parecer, ACTITUDES para con la ciudad y su entorno social y cultural que son dignos de ser destacadas, ya sea por su mirada Regionalista/contextualista, por un rescate de las tradiciones locales o por su voluntad de "hacer ciudad" mediante espacios públicos para la comunidad.

"Hacer arquitectura en Latinoamerica es un acto político ademas de estético y cultural,toda acción que transforme los espacios en función del bienestar, participación y la apropiación de la ciudad son necesarios, y es ahí donde la arquitectura no debe estar ausente."Rogelio Salmona

martes, 28 de junio de 2011

Una placa que hace ciudad

ESTUDIO DE ARQUITECTURA - ATRIO (EDUARDO GRINBLAT , PEDRO MACCHI ARÁOZ , GUILLERMO SOBRINO ARQUITECTOS) 
COLEGIO DE ABOGADOS DE TUCUMAN
PROYECTO Y DT


Colaboradores: Pilar Navarro-Luis Avila-Gabriel Wajnerman-Sebastián Roldán-Mariano Ortiz-Gabriela Giuliano Raimondi 
Ubicación: Congreso 450 - San Miguel de Tucumán - Tucumán - Argentina
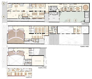
Superficie cubierta: 1480 M2
Año de proyecto y ejecución :2004/2005
Constructora: Murga y Hanne S.R.L.


El estudio Atrio arquitectura formado por los arquitectos Guillermo Sobrino,Eduardo Grimblat y Pedro César Macchi Aráoz fue el ganador del concurso privado en el que se encargó la remodelación y ampliación del Colegio de Abogados de Tucumán.

El proyecto está ubicado rematando el pasaje Vélez Sarfield , a metros del histórico edificio del Palacio de Tribunales frente a la plaza Irigoyen, una de las tres más importantes de la ciudad, por lo que el contexto fue una de las condicionantes más consideradas en el proceso de diseño.



Lo que se buscó fue generar un edificio que además de estar integrado al entorno tuviera una identidad propia.

Con estas premisas observamos en el frente ciertos elementos que son reinterpretados del histórico  edificio, como la refinada placa de mármol color new beige, las buñas horizontales y las rajas verticales que simbolizan la modulación vertical de las pilastras de Tribunales.



Del mismo modo dicha placa, edificada sobre la línea municipal, se deforma en hormigón visto que se inserta en una piel de vidrio, ambos retranqueados en el terreno, logrando una clara identidad en el conjunto y simbolizando un pasaje desde lo clásico a lo moderno, de lo sencillo a lo sofisticado, de lo tectónico a lo liviano. Dichas envolventes responden, a su vez, a requerimientos funcionales internos.



Otra premisa del estudio fue que la plaza esté presente desde el interior del edificio, por ello el espacio cubierto por la piel vidriada cuenta con una triple altura hacia donde desborda el hall principal y el del auditorio, y  desde allí se puede visualizar el espacio público logrando una integración espacial.




Lo mas interesante del proyecto, a nuestro entender, es la manera en que se relaciona con el entorno a través del uso de elementos simples y claramente identificables  y en el que busca generar un dialogo con los edificios vecinos sin destacarse, logrando una armonía con el espacio público y con el significativo edificio de Tribunales.











2 comentarios:

  1. Me encanta el edificio del Colegio, está super bien!
    Saludos!

    ResponderEliminar
  2. arquitectura latinoamericana1 de julio de 2011, 17:28

    gracias por el comentario,saludos!

    ResponderEliminar